Здравствуйте. Продаю свою квартиру, я собственница, не агентство.
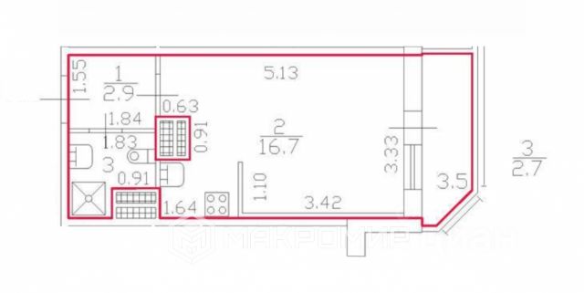
Площадь квартиры с лоджией 27.3.
Пожалуйста, прочитайте объявление до конца — здесь есть ответы на основные вопросы.
1. СОСТОЯНИЕ КВАРТИРЫ.
Квартира со свежим ремонтом, мебелью и техникой, полностью готова к заселению.
Мебель:
качественная IKEA. Есть полка для обуви, шкаф, кухонный гарнитур, комод, диван, обеденный стол, 2 стула, стеллаж, кровать.
Техника:
вся современная и в хорошем состоянии.
На кухне:
Большая духовка Gorenje, микроволновка Samsung, вытяжка, посудомоечная машина Beko, чайник Bork, варочная панель Kuppersberg, холодильник Hi, стиральная машина, блендер Bosch, мультиварка Redmond.
В комнате:
телевизор Smart TV Philips, Wi-Fi-роутер, гладильная доска, утюг новый Philips, пылесос, увлажнитель воздуха. Освещение в квартире управляется с пульта.
Санузел:
душевая кабина, раковина, зеркало, унитаз, полотенцесушитель, тумба.
Дополнительно:
Вместе с квартирой остается посуда IKEA: тарелки, бокалы, вилки, ложки, кастрюли, сковородки, емкости для хранения.
2. ОСНОВНАЯ ВАЖНАЯ ИНФОРМАЦИЯ.
Я единственная собственница квартиры.
В квартире прописана только я.
Детей нет, в официальном браке не состою и не состояла.
Квартиру покупала более 5 лет назад за наличные.
Квартира юридически чистая, никогда не была в залоге.
Покупала квартиру для себя, ремонт делала качественно для себя, технику также выбирала хорошую для себя.
После ремонта жила в квартире 2,5 года одна, без детей и домашних животных.
Затем сменила место работы и переехала за границу. Последний год квартира сдается в аренду одному человеку, тоже без домашних животных и детей.
Договор аренды заканчивается 7 мая, то есть примерно через 2 недели после размещения этого объявления.
Так как теперь я планирую жить за границей на постоянной основе, решила продать квартиру и купить жилье ближе к работе.
3. КАК ПОСМОТРЕТЬ КВАРТИРУ.
Квартиру может показать арендатор. Или после 7-го мая, в любой день я могу показать сама, если к тому времени она уже не будет продана.
4. КАК БУДЕТ ПРОХОДИТЬ СДЕЛКА.
Сделку можно провести через Домклик. На сделку приеду лично.
5. НУЖЕН ЛИ ЗАДАТОК?
Задаток можно внести безопасным способом, через Домклик.
Простыми словами условия будут такие: Вас не волнует по какой причине я не продала вам квартиру в оговоренный срок, если в итоге не продала вы получаете задаток обратно в двойном размере. Меня не волнует по какой причине вы не купили квартиру в оговоренный срок, если в итоге не купили задаток не возвращается.
Размер задатка 200 000 рублей.
6. ДРУГИЕ УСЛОВИЯ.
Разумный торг возможен, если с покупателем получится быстро и спокойно договориться, без дополнительных сложностей.
Чем дольше и утомительнее переговоры, тем меньше желания пойти на встречу.
Если остались вопросы, лучше писать, а не звонить, так как роуминг за границей дорогой.