332 386 ₽/м²
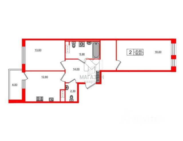
Предлагается к продаже просторная 2-х комнатная квартира в уникальном комплексе Бизнес класса " Светлана Парк". Дом кирпично-монолитный 2023 года постройки. В отделке фасадов использован клинкерный кирпич с архитектурной вечерней подсветкой. Панорамные алюминиевые окна "Reynaers". Безрамное остекление балконов и лоджий. Потолки 3 метра, дополнительная шумоизоляция в полу, всего 4 квартиры на площадке. Окна квартиры смотрят на две стороны. Общая площадь квартиры 70.4 м2 с учетом лоджии (без учета лоджии 66.4 м2). Комнаты изолированные: гостиная 18 м2, спальня 13.6 м2, кухня 12.5 м2 с выходом на лоджию 4 м2, просторная прихожая 11.5 м2, гардеробная 2.5 м2, 2 санузла: 5.9+2.4 м2. Для Вас разработано дизайнерское решение возможного варианта расстановки мебели, дизайн-проект в подарок покупателю, который будет доработан специально для Вас, в соответствии с Вашими пожеланиями, а также можем порекомендовать подрядную организацию, которая может осуществить ремонтные работы в соответствии с Вашим дизайном. Рядом с дома расположен парк Сосновка и Удельный парк. В пешей доступности 2 станции метро Удельная и Площадь Мужества. На машине до центра города всего 15 минут езды. Рядом с ЖК множество детских садов и школ, в том числе престижная гимназия 92 и школа 24 с углубленным английским языком. Развитая инфраструктура с множеством магазинов, кафе, гипермаркетов. В доме предусмотрен подземный паркинг. Отличная входная группа-просторные холлы с зоной для ожидания гостей. Благоустроенный променад с арт-скверами и всесезонный дендропарк во дворе. Идеальный вариант для жизни с множеством мест для активного отдыха, прогулок и занятий спортом. Квартира без обременений. Просмотры по договоренности.





















































































