Арт. 135747878 Продается уютная, светлая и теплая квартира для комфортного проживания!
ДОМ И КВАРТИРА:
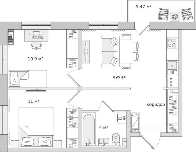
Однокомнатная квартира 37кв. м без учета лоджии. Кухня почти 8 кв.м. правильной формы, где, при желании, можно разместить даже маленький диванчик. Комнату 21,2 кв.м. можно легко зонировать на нишу-спальню и гостиную. Сан узел раздельный, в квартире есть дополнительное место для хранения - кладовка.
Дом КИРПИЧНЫЙ, стены толстые, значит летом в квартире сохраняется прохлада, а зимой тепло.
Дополнительную шумоизоляцию обеспечивает просторная лоджия, расположенная вдоль окон кухни и комнаты. Лоджия застеклена и обшита деревом. Окна выходят на восток, чему вы будете особенно рады в летнюю жару, ведь вечером солнце уже "уйдет" и в квартире будет комфортная температура.
Квартира чистая, ухоженная, "не убитая", без запаха, вся мебель остается.
Подъезд приличный, соседи дружелюбные, мест для парковки во дворе достаточно.
БЛАГОУСТРОЙСТВО МИКРОРАЙОНА И ИНФРАСТРУКТУРА:
В 4х минутах ходьбы Пионерский парк, Бестужевский сад, парк им. Академика Сахарова, в 10- минутах пешком Пискаревский мемориал и Пискаревский лесопарк.
Рядом с домом гимназия 192 Брюсовская, школа 653 им. Тагора (гуманитарная, изучают хинди, практикуют поездки в Индию) в шаговой доступности детский сад, Медицинский университет им. Мечникова через дорогу, рядом Пятерочка и ТРЦ Пискаревский, кафе, аптеки и тд.
ТРАСПОРТНАЯ ДОСТУПНОСТЬ:
Остановка под окном конечная, 20 рейсов в разные точки города (Финляндский вокзал, Черная речка, ст. м. Приморская, ст.м. Балтийская, Ладожская, Большевиков и тд.), ближайшие магистрали - пр. Пискаревский, пр. Непокоренных, Индустриальный пр., выезд на КАД - 7 минут. До метро пл. Мужества 12 м на авто, 30 м на транспорте, пл. Ленина 15 м на авто, 20 м транспортом. Близость Ж/д станции Пискаревка (5 минут пешком) позволяет за 14 минут, без пробок доехать до станции метро пл. Ленина или до м. Девяткино 10 мин, а также электричка за 30 минут домчит вас до живописных Кавголовских озер и ближайших пригородов.
ДОКУМЕНТЫ:
Квартира без обременений. Два взрослых собственника, не пенсионеры, это не единственное жилье. В собственности более 5-и лет. Полная стоимость в договоре. Готовы к быстрому выходу на сделку.
Звоните сегодня, чтобы завтра не услышать продано!