Первичная продажа



С отделкой
Онлайн-бронирование
сдача ГК: 4 кв. 2027 года
Лесная
15 минут пешком
18 455 945 ₽
446 767 ₽/м²
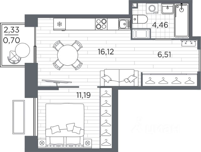
Продается однокомнатная квартира с отделкой в ЖК "RESPECT" на 8 этаже. Общая площадь: 41.314 кв.м., жилая: 15.24 кв.м., площадь просторной кухни-столовой: 14.48 кв.м. Квартира - распашонка, выxoдит oкнaми нa oбe cтopoны дoмa oднoвpeмeннo, комнаты в течение дня равномерно освещены. В квартире один балкон, один совмещенный санузел. Высота потолков 2.7 м.
Дом монолитный, многоподъездный, переменной этажности, от 8 до 13 этажей. Квартира находится в 1-й секции высотой 13 этажей в корпусе 3.3. На этаже 6 квартир. В подъезде 1 пассажирский и 1 грузовой лифт. Начало строительства - 3 квартал 2025 года. Окончание строительства - 4 квартал 2027 года. Оформление сделки по договору долевого участия.
В шаговой доступности от жилого комплекса находятся станции метро (расстояние по прямой): "Лесная" (800 м), "Площадь Мужества" (1.4 км), также недалеко от этого корпуса находятся станции метро: "Выборгская", "Академическая", "Политехническая".
Квартал строится на Полюстровском пр, 87, в одной из самых востребованных локаций Петербурга. В 10 минутах пешком - метро "Лесная" и в 10 минутах на транспорте - Петроградская сторона. Высота домов от 7 до 13 этажей. На территории Respect строится школа на 1125 учащихся и детский сад на 240 мест. Запроектированы собственная газовая котельная, закрытая территория, дворы без машин и подземные паркинги с лифтами.
Вентилируемые фасады облицованы клинкерным кирпичом. Дома из этого материала служат веками, являясь гордостью хозяев.
Дизайн парадных зон и входных групп - сочетание лаконичности отделки и декоративных элементов с текстурами из натурального камня и дерева с приглушенной подсветкой теплым светом. Во входных группах расположены гостевые зоны с мягкой мебелью.
Вся территория квартала будет связана единой концепцией благоустройства, разработанной ландшафтным бюро L.BURO. В основе - идея создания увлекательного ландшафтного пространства для насыщенной жизни, включающего в себя пейзажные зоны, современные архитектурные композиции, открытые террасы на стилобатах с зонами отдыха и парклетами, спортивными площадками. Это пространство для людей всех возрастов и различных увлечений.
На эксплуатируемой кровле на уровне первого этажа в домах 1 и 4 будут обустроены общественные видовые террасы.
В квартале запроектированы внутренние закрытые территории дворов домов без доступа автомобилей и безбарьерная среда для велосипедистов и колясок. Предусмотрены IP-домофония с функцией дистанционного открывания калиток и парадных, а также дистанционный сбор показаний счетчиков и мобильное приложение для жителей. Для безопасности жителей квартала - круглосуточное видеонаблюдение и служба охраны. В каждой квартире предусмотрены внешние корзины для кондиционеров.








































































































