

197 374 ₽/м²
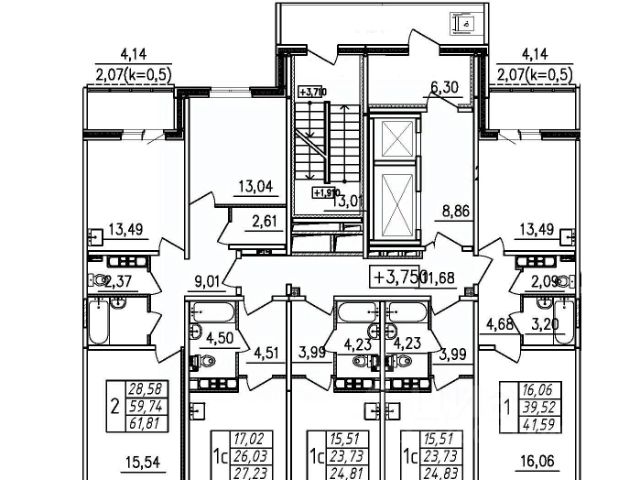
Однокомнатная квартира с предчистовой отделкой в ЖК "Солар Парк" на 12 этаже. Общая площадь: 32.12 кв.м., площадь просторной кухни-столовой: 12.62 кв.м. Высота потолков 2.74 м. Дом монолитный, многоподъездный, высотой 12 этажей. Квартира находится в 1-й секции в корпусе 1. На этаже 8 квартир. В подъезде 1 пассажирский и 1 грузовой лифт. Окончание строительства - 4 квартал 2028 года. Оформление сделки по договору долевого участия. В Аквилон Солар Парк зелени больше, чем вы привыкли видеть в городе: деревья, газоны и цветники органично окружают дом, создавая ощущение настоящего парка. Больше, чем требует стандарт, больше, чем вы ожидали — место, где хочется дышать и жить. Территория комплекса озеленена северными растениями, добавляющими пространству природный уют и уединенность круглый год. Оборудованы прогулочные зоны и тихие места для отдыха. Здесь можно выйти из дома и сразу оказаться среди зелени — без шума дорог и плотной городской застройки. - Повышенный стандарт озеленения - Много северных вечнозеленых растений - Туя в подарок каждому покупателю - Закрытый двор без машин - Бесшовный WIFI на территории - GSM-усиление в лифтах в паркинге - Продуманные планировки - Спортивный комплекс Стандарты Группы Аквилон для вашей комфортной жизни Thermo-S экономия на коммунальных платежах за счет дополнительно утепленных стен, кровли и цоколя. Энергоэффективные окна с селективным покрытием и аргоновым заполнением Soundstop - дополнительная шумоизоляция внутренних перегородок и межэтажных перекрытий, шумозащитные окна, малошумные лифты Light-in - в квартирах устанавливаются широкоформатные окна, увеличены на 30%. Высота подоконников на уровне 60 см от пола. Vent-in - в каждой комнате есть клапаны индивидуальной вентиляции, которые обеспечивают приток свежего воздуха с улицы. "Умная" система inHOME Дистанционное управление квартирой через смартфон. Включает в себя систему бесключевого доступа, IP-домофонию, датчики дыма и открытия дверей, "Умные счетчики", системы энергосбережения, дистанционного отключения розеток и защиты от протечек. Локация и инфраструктура Вблизи ЖК расположен выезд на КАД и основные транспортные магистрали города. В районе хорошо развита социальная инфраструктура: магазины, точки бытовых услуг, образовательные и медицинские учреждения находятся вблизи от комплекса. На машине: 15 мин. до метро 5 мин. до КАД 40 мин. до центра Запущен новый скоростной трамвай Славянка В перспективе строительство новых развязок с ЗСД и КАД.








































































































