


600 000 ₽/м²
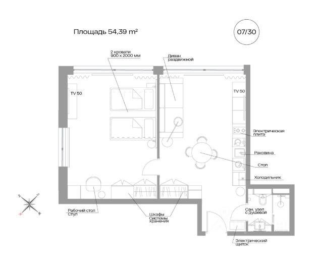
ЖИВИТЕ ВАШУ ЛУЧШУЮ ЖИЗНЬ В ПРОЕКТАХ ЭЛЕМЕНТ 2-ком. квартира 25 на 7 этаже в секции 1 Дома SHEPILEVSKIY (Шепилевский) Дом сдан! Выдаем ключи! О проекте: Торжественный и величавый, Клубный дом SHEPILEVSKIY (Шепилевский) включает 184 квартиры клубного формата. Дом гармонично вписан в существующий архитектурный контекст Алтайской улицы Московском районе. Из окон большей части лотов открывается захватывающий вид на юг, север и центр Петербурга. Максимальный обзор на город достигнут и за счет больших окон высотой от 2,5 до 5 метров. SHEPILEVSKIY (Шепилевский) предлагает новое видение жизни в премиальном объекте с особым акцентом на комфорт и технологичность жилой среды. В проекте Shepilevskiy более 100 передовых решений и девелоперских идей. Среди них единая акустическая система в общественных пространствах, система "умный дом", усиленная звуко- и теплоизоляция, бесконтактный доступ в дом Face Key, считыватели номеров авто в двухуровневом подземном паркинге и многое другое. 184 квартиры; 25 этажей; Лаундж-терраса под открытым небом на 24 этаже (72 метров!); 400 м2 общественных пространств; Парадное лобби; Кинозал; Комната для спорта; Коворкинг для деловых переговоров; Детский клуб; 2 800 м2 площадь авторского сквера; 4 минуты от м. Московская; ELEMENT создаёт инновационные жилые и коммерческие объекты в Санкт-Петербурге и Москве, которые устанавливают новые стандарты эффективной жизни в мегаполисах.























































































































