


269 398 ₽/м²
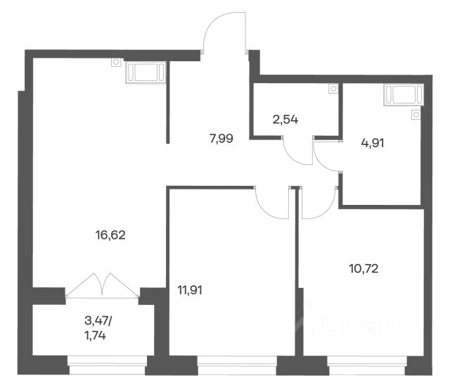
Готовые квартиры от застройщика: * Семейная ипотека 4.4% * Выдаем ключи! * Вид на Неву * Дизайнерские парадные * Закрытый благоустроенный двор * Подземный паркинг Продаётся 2к.кв. в ЖК ЛайнерЪ от застройщика Группа компаний "РСТИ". Квартира находится в 17 этажном доме, в ЛайнерЪ на 9 этаже. Общая площадь квартиры 69,30 кв.м. Жилой комплекс "Лайнеръ" на Октябрьской набережной это дом с живописными видами на Неву, вантовый мост и новые кварталы Санкт-Петербурга. Авторский проект сочетает в себе стильные выразительные фасады с переменной этажностью, закрытый благоустроенный двор, разнообразные планировочные решения. В стилобатной части расположен просторный, теплый подземный паркинг. Из паркинга можно подняться на лифте на свой этаж, чтобы не нести покупки по лестнице. В доме представлен широкий выбор квартир от студий до трехкомнатных, в том числе уникальные лоты: квартиры с мастер-спальнями, квартиры-студии с двумя окнами и с возможностью зонирования, квартиры с окном в ванной, квартиры с террасами, квартиры с просторной кухней-гостиной 20-27 кв.м. Предлагаются варианты с чистовой, предчистовой отделкой и без отделки. "Лайнеръ" расположился в новом активно развивающемся районе Санкт-Петербурга, удобном с точки зрения транспортной доступности. Крупные развязки и наличие неразводного Большого Обуховского моста позволяют оперативно добираться до нужного места. Шопинг и развлечения тоже рядом 5-10 минут езды до огромного торгово-развлекательного комплекса, расположенного в Кудрово. Близость КАД обеспечит быстрый доступ в любую точку города и пригороды (Колпино, Шлиссельбург, Всеволожск и др.). В 15 минутах езды от жилого комплекса находятся 2 станции метро Пролетарская и улица Дыбенко.


































































































