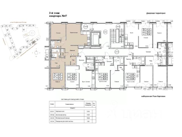
Арт. 136266675 Одна из лучших планировок в проекте!
63,33 м², 3-евро формат. Это значит: две спальни + кухня-гостиная 20 м². Не проходные комнаты, не "спальня-шкаф". Нормальные изолированные комнаты, в каждую — кровать, тумбочка, место для одежды. Кухня-гостиная 20 квадратов — стол на 6 человек, диван, телевизор, и всё это не навалено друг на друга.
Гардеробная 2,59 м² — отдельно, не в спальне, не в коридоре. Прачечная/постирочная рядом с санузлом — логика, которая редко встречается в новостроях. Раздельный санузел — туалет от ванной, утром не очередь.
4 этаж из 6. Не первый — не шум с улицы, не пыль, не любопытные взгляды. Не последний — не крыша над головой, не перегрев летом. Золотая середина.
Панорамные окна высотой 2,8 м — это не просто красивые слова
Высота потолков 3 метра + окна в пол = воздух, свет, ощущение пространства. В Петербурге, где полгода серо, это имеет значение. Квартира не тёмная коробка, а место, куда хочется возвращаться. Вид на Карповку — не "окна в окна" с соседом в метре, а красивая эксклюзивная перспектива.
Французский балкон — не полноценная терраса, но и не декоративный элемент. Можно выйти, проветрить, поставить цветы.
ID Petrogradskaya — что это за проект и почему он не похож на остальные
Клубный квартал из 29 секций, 6 этажей. Не башня на 25 этажей, где 300 семей делят один лифт и детскую площадку. Не типовая застройка. Монолит, фасады в бежево-серых тонах с терракотовыми акцентами. Архитектор — Сергей Орешкин, бюро А.ЛЕН. Это имя на рынке значит что-то.
Два внутренних полузакрытых двора + три парадных двора-курдонёра, открытых на набережную Карповки. Детские площадки, спорт, велодорожка, променад, благоустроенная набережная с причалом. Сохранённая артезианская скважина императорских времён — не понты, а часть истории места.
Свой детский сад на 100 мест, начальная школа на 200 мест. Не "построим позже", а в проекте. Индивидуальные кладовые, подземный паркинг с лифтом.
Локация: Петроградка между Попова и Карповкой
Это не "рядом с Петроградкой", это Петроградка. 10 минут пешком до метро "Петроградская", 20 минут до "Чкаловской". Рядом — вузы, гимназия, поликлиника, больница, фитнес-клубы, сады, скверы. Карповка — не просто река, а набережная для прогулок.
Вы спросите: "А пробки?" На Петроградке они есть. Но здесь вы живёте в шаговой доступности от метро, работы, школы, парка. Машина нужна не каждый день.
Честно о минусах
Срок сдачи — 4 квартал 2029. Это не завтра. Если вам нужно въехать через полгода — не вариант. Но если вы планируете на 3-4 года вперёд, хотите сделать ремонт под себя и при этом купить на Петроградке по выгодной цене — это ваш шанс.
Без отделки — да, надо вкладываться в ремонт. Но здесь вы тратите те же деньги, что и заплатите застройщику, но получаете именно свой результат.
Кому эта квартира
Для семьи, которая хочет две спальни и нормальную гостиную на Петроградке, но не готова платить 50+ млн за готовую вторичку. Для тех, кто ценит планировку больше срочности. Для инвестора, которы