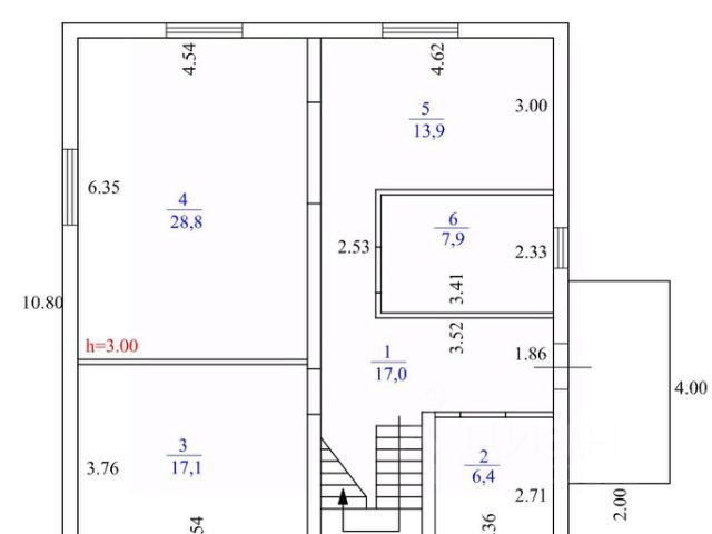
ПРОДАЕТСЯ НОВЫЙ 2-Х ЭТАЖНЫЙ ТЕПЛЫЙ ДОМ ДЛЯ КРУГЛОГОДИЧНОГО ПРОЖИВАНИЯ, В ГАТЧИНСКОМ РАЙОНЕ, Д. ПУДОМЯГИ! С полной отделкой и подключенными коммуникациями! ПРЕИМУЩЕСТВА 1. Надежный долговечный дом 142,2 кв.м. - ФУНДАМЕНТ МОНОЛИТНАЯ ПЛИТА 9*9 предотвращает деформацию дома. - СТЕНЫ - блоки из ячеистого бетона (газосиликатные блоки), с утеплением из плит пенополистирольных теплоизоляционных, имеют хорошую звукоизоляцию, экологичны, не боятся вредителей и не гниют. - Внутри отделан имитацией бруса из хвойных пород, что создает уютную атмосферу и приятный запах нового деревянного дома. - Крыша крыта ондулином: бесшумна, не нагревается на солнце летом, сохраняет тепло внутри зимой. 2. Удобная планировка: - Много комнат - гарантия комфорта для всех членов семьи; - Минимум проходных метров; - Хотите изменить планировку? Легко! Например, добавьте спальню на 1 этаже и санузел на втором. 3. Подключены коммуникации: - ВОДА от скважины заведена в дом, сантехника установлена; - Электричество, выполнена разводка, розетки, светильники; - Отопление от электроконвекторов; - Локальная канализация. 4. Транспортная доступность: - на машине до КАД 27км. - в 600м от дома остановка Антелево - Гаражи. Автобус 527 ходит до г. Гатчина, ж/д вокзал Варшавский вокзал. Автобус 478 ходит до г. Павловск, ж/д станция Павловск. Автобус 529 ходит от Гатчины до Павловска. 5. Инфраструктура: - в г.Коммунар есть детский сад и школа, поликлиника (4км. от дома). Так же есть продуктовые магазины Светофор, Дикси в радиусе 400км. Амбулатория ближайшая в 1,5км. Участок 6 соток, огорожен забором с калиткой и воротами для авто. Купить новый, загородный дом для круглогодичного проживания с пропиской можно в ипотеку, сельскую ипотеку, с использованием материнского капитала, сертификата, рассрочку, аренду с правом выкупа и т.п. АРЕНДА С ВЫКУПОМ! Срок от года до 30 лет! Под 14% годовых! Не нужны справки, поручители, залог имущества и первый взнос! При любой кредитной истории! Полное сопровождение от выбора дома до сделки. Мы - НЕ агентство, мы Отдел продаж застройщика-собственника! Звоните и я расскажу о доме и вариантах его приобретения. Убедитесь, что переехать в свой дом это легко!


















































































