Продажа готового дома 112 м² + чердак 80 м² чердак / ИЖС / Семейная ипотека 6%
Прямая продажа от застройщика. Юридическая чистота.
Дом построен, зарегистрирован, стоит на кадастровом учете. Адрес присвоен: Ленинградская область, Тосненский р-н, дер. Аннолово, ул. Людмилинская, д.119.
Свет горит, вода течет, отопление работает. Можно переезжать и сразу жить!
Условия покупки (работаем официально):
• Семейная ипотека от Сбербанка — 6% годовых.
• Первый взнос от 20,1% на срок до 30 лет.
• Работаем со счетами ЭСКРОУ.
• Принимаем Материнский капитал в первый взнос.
• Государственные сертификаты.
• Если условия не подходят — базовая ипотека от 17% годовых.
Характеристики дома:
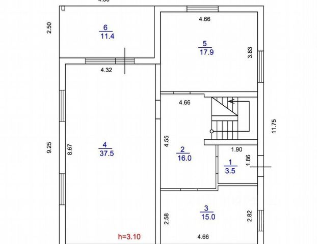
• Площадь: 112 м² (зимний дом) + 80 м² (чердак — холодный, под утепление и хранение). Участок 12,4 сотки.
• Конструкция: Новый, заводское изготовление из СИП-панелей (сэндвич-панели) по индивидуальному проекту.
• Фундамент: Винтовые бетонированные сваи 2.5 м, обвязка антисептированным брусом.
• Кровля/Фасад: Металлочерепица, вентилируемый фасад Дёке Премиум.
• Окна/Дверь: Veka (двойной стеклопакет), входная металлическая дверь с терморазрывом.
Коммуникации (всё подключено):
• Вода: Индивидуальная скважина, разводка по дому, бойлер на 100 л (горячая/холодная).
• Канализация: Станция биологической очистки (без запаха, без откачки).
• Электричество: Прямой договор с Ленэнерго (лицевой счет), электрика разведена, розетки.
• Отопление: Электрокотел, стальные радиаторы (система запущена).
• Отделка: Ламинат 33 класс, натяжные потолки, санузел готов (ванна, раковина, туалет).
Локация и инфраструктура:
• Расположение: Коттеджный посёлок Людмилино (Тосненский район).
• Транспорт: 30 км от КАД (метро Купчино) по Московскому шоссе. Автобусы до метро (521) и до ж/д вокзала (493).
• Природа: Река Ижора в 3 минутах.
• Всё рядом: Пятёрочка, кафе-пекарня (1,5 км), школа и садики в пос. Фёдоровское (4 км, ходит школьный автобус), МФЦ, Сбербанк.
• Управляющая компания: Взносы 1250 руб./мес. (чистка дорог, освещение, шлагбаум, видеонаблюдение, детская площадка, дренаж).
Сроки: Переезд возможен через 10-14 дней с момента подачи заявки на кредит.
Звоните! Покажем дом, ответим на вопросы. Прямая продажа без комиссий!
купить дом, дом в Ленинградской области, дом в Тосненском районе, дом в Аннолово, дом из сип панелей, готовый дом, дом с участком, ИЖС, дом 80 кв м, коттедж, дом с чердаком, дом под ключ, дом с коммуникациями, семейная ипотека 6%, ипотека с маткапиталом, дом от застройщика, прямая продажа, дом рядом с Санкт-Петербургом, дом у реки, дом в коттеджном поселке, Людмилино, Аннолово дом, дом с отделкой, дом с мебелью, дом с электричеством, дом с водой, дом с отоплением, переезд сразу, дом без посредников Продается дом в городском поселении Федоровское Тосненского района.