


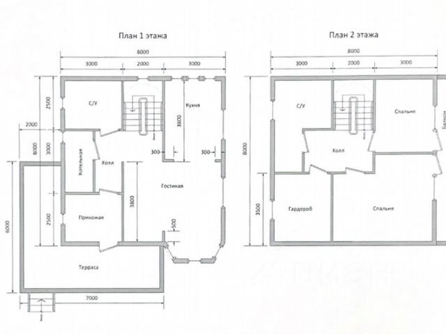
Арт. 105056008 Продаётся комфортный дом 174 м² в коттеджном посёлке "Фаворит" — ваш статусный уголок с дизайнерским шиком! Устали от компромиссов? Этот дом — готовое решение для тех, кто ценит пространство, безопасность и безупречный стиль. Просто въезжайте и наслаждайтесь жизнью! Почему этот дом — эталон загородной элитки? Роскошная планировка: - Мастер-спальня с приватной ванной комнатой и панорамным остеклением. - Две изолированные спальни — идеально для семьи или гостей. - Кухня-гостиная 46 м² с панорамными окнами — сердце дома для вечеринок и семейных ужинов. -Вместительная гардеробная — никакого беспорядка, только эстетика. Дизайн "под ключ": - Авторский ремонт с дорогой отделкой. - Вся мебель и техника остаются — от диванов до кофемашины. - Тёплые полы по всему дому резервный электрокотёл — тепло даже в лютые морозы. Участок — ваша приватная резиденция: 6 соток ухоженной территории: идеальный газон, зона барбекю с каменной печью. Хозпостройка для хранения инвентаря или мастерской. Навес на две машины, откатные ворота с автоматикой. Видеонаблюдение по периметру — спокойствие 24/7. Технологии и комфорт: Коммуникации: - Газгольдер (уже установлен) ведутся работы по подключению магистрального газа. - Скважина, современная канализация, электричество 15 квт. Жизнь в "Фаворите" — это: Престижный посёлок с охраной и концепцией "тишины" — никаких случайных машин. Перспектива: газ, дороги с освещением, детские площадки — инфраструктура развивается. 30 минут до города на машине — Вы в цивилизации, но не в её шуме. Цена включает Всё: Дом 174 м² с дизайнерским ремонтом. Участок с ландшафтным дизайном. Мебель, техника, системы безопасности. Продажа от собственника. Подходит под ипотеку. Это не дом. Это — ваш новый статус. Звоните! Покажем дом сегодня — вы влюбитесь с первого взгляда. P. S. Такие предложения не "залёживаются". Успейте стать первыми. Номер объекта: #1/537022/23932 Купить дом в коттеджном поселке Фаворит в сельском поселении Гостилицкое.



























































































