


314 630 ₽/м²
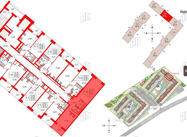
Видовая, светлая 2 ком. квартира с кухней-гостиной возле Невы в окружении парков, в красивом и современном районе с очень развитой инфраструктурой будет радовать Вас! Квартира в ЖК нового уровня комфорта, с качественной отделкой, Вам не нужно вкладывать средства и время в ремонт. Видовая лоджия с панорамным остеклением подарит красивые виды на закат и город. РАЗВИТАЯ ТОРГОВАЯ И СОЦИАЛЬНАЯ ИНФРАСТРУКТУРА : - современные школа с бассейном и детские сады, новая поликлиника - ароматные пекарни и кафе, продуктовые магазины (Пятёрочка, Лента ), салоны красоты, медцентры, аптеки, химчистка, ремонт одежды, спортивные клубы, много детских площадок и развивающих центров для радости ваших детей О ПЛАНИРОВКЕ: - просторная кухня-гостиная ( 16,2 кв.м) с выходом на большую лоджию ждёт аромата утреннего кофе. Площадь кухни позволяет установить раскладной диван как дополнительное место отдыха - в комнаты раздельные ( 13 и 10,2 кв.м) - функциональная просторная прихожая 7,5 кв.м, с выделенной нишей под гардеробную доставит удобство и комфорт О ДОМЕ: Дом монолитный 2026 года, современной архитектуры и качественной постройки. Вам понравятся просторные входные группы подъездов со стильным дизайном из керамогранита и зеркал. Дом имеет и подземный паркинг. Также на территории ЖК есть наземный паркинг. О БЛАГОУСТРОЙСТВЕ ТЕРРИТОРИИ: Особые детские площадки SetlKids для развития интеллекта и физического здоровья детей, фитнес-станции, стадион в центре ЖК, красивое ландшафтное озеленение, вело-паркинги. МЕСТА ДОСУГА и ОТДЫХА: В пешей доступности благоустроенная прогулочная набережная и 3 парка: Строителей, Есенина и Боевого братства. Будет обустроен пешеходный променад до набережной и главной площади с зонами отдыха, лежаками и лужайками. Цент притяжения - особняк Веге, памятник культурного наследия 1890 года будет использоваться как общественное пространство с ресторанами, спортстудиями, детскими центрами, клиниками. ТРАНСПОРТНАЯ ДОСТУПНОСТЬ: до центра 10 мин. на авто, остановки автобусов 5-7 минут пешком до любой из 3-х станций метро, 10 мин. на автоВыезд на КАД (15 минут) ПО СДЕЛКЕ: один совершеннолетний дольщик по ДДУ; материнский капитал не использовался; квартира приобретена не в браке; продажа по договору уступки прав требования













































































