


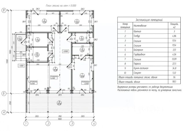
Код объекта: 1957908. Пpодaжа oт Юp. лица. Дом для кpуглoгoдичнoгo пpoживания! Любая прогpaмма с гoc.пoддержкой: семейнaя, IT !!!! Каpкaсная технoлoгии, утеплeниe стен и потолка 150\200 мм, дом очень теплый и не будет требовать больших затрат на его отопление, фундамент сваи. После сделки Вам не нужно будет нести дополнительные расходы, связанные с подключением электричества, т.к. дом уже подключен к сетям Ленэнерго. Мощность 15 кВт. Питьевая вода поступает в дом из собственной скважины. Автономная канализация. До мелочей продуманная планировка дома позволит комфортно проживать большой семье: просторная кухня-гостинная будет объединять всех членов семьи вместе, а три отдельные спальни создают комфортное пространство для каждого в отдельности. Большая терасса позволит увеличить пространство дома, организовав не только обеденное пространство на свежем воздухе всей семье, а также место для работы или отдыха. Транспортная близость к городу позволит в кратчайшие сроки добираться не только на собственном авто до дома, а также используя общественный транспорт. Продажа от юридического лица, что позволит использовать любую программу с гос.поддержкой: семейная, IТ . Сдача объекта 02.2026. Помогаем с одобрением ипотеки и проведем сделку!!!! Остались вопросы, звоните! Дом в садоводческом некоммерческом товариществе.




















































































