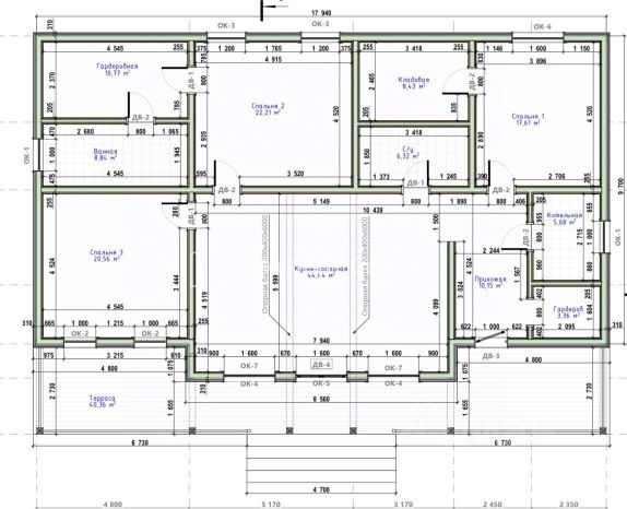
Предпродажа строящегося дома с отделкой в КП Ленинская Слобода . Стены дома из трехслойных железобетонных панелей с утеплителем 150 мм (каменная вата). Монолитная лестница на второй этаж . Металическая лестница на эксплуатируемую кролю Внутренние железобетонные перегородки. Фундамент монолитная плита 300 мм. Септик, подключенные коммуникации, теплый пол. Отделка по дизайн проекту . Площадь 208.9 кв .м - кухня-гостиная 42,5 кв.м; - четыре спальни 16.8кв.м , -15.8 кв .м , 16,9 кв.м; - прихожая 13 кв.м., СУ1 6,5 кв.м и СУ2 6 кв.м СУ 3 3,8 кв м. постирочная котельная 7.2 кв.м гардеробная 1 6,9 кв м гардеробная 2 . 3.8 кв м . Лоджия 1 2.9 кв Лоджия 2 2.8 кв м - крытая терраса 12.5 кв.м; Монолитный дом в стиле минимализма , оригинальная отделка фасада с металическими вставками также на кровле дома расположена зона отдыха площадью 90 кв м . Оригинальность коттеджа все площади задействованы для эксплуатации в том числе и кровля коттеджа . Данная стоимость коттеджа предлагается в теплом контуре без отделки . Стоимость участка не входит в стоимость коттеджа . Мы 15 лет строим эксклюзивные коттеджи . Оказываем подрядные работы , строительства коттеджей на участке заказчика. Разрабатываем индивидуальные проекты для заказчика входит в стоимость строительства Сроки строительства : теплый контур 45 дней , и 7 месяцев с полной отделкой коттеджа . Работаем по семейной ипотеке . Подберем вам участки для строительства. Самое главное , у нас отличные и индивидуальные условия для заказчика . Звоните , рады консультировать вас о наших коттежей и покажем вам наши работы удобное для вас время .















































































