


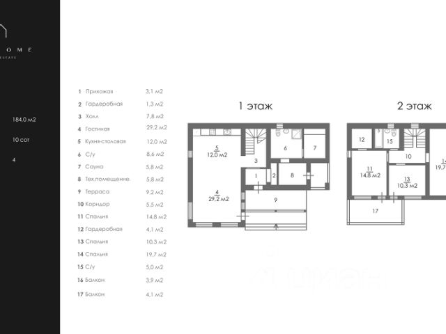
Предложение по цене действует до 01.07. Вашему вниманию представлен уникальный 2-х этажный жилой дом в коттеджном поселке бизнес-класса Охтинский парк во Всеволожском районе Ленинградской области! Прямая продажа, 1 взрослый собственник, без обременений, возможна рассрочка платежа! ОБЩАЯ ИНФОРМАЦИЯ: Категория земель - Земли населенных пунктов Вид разрешенного использования - Индивидуальное жилищное строительство Площадь участка - 18,9 соток Общая площадь дома с учетом гаража и террасы - 527,1 м2 Площадь 1 этажа - 344,8 м2 Площадь 2 этажа - 182,3 м2 + Фундамент дома железобетонная плита с дополнительным усиленным ростверком. + Перекрытия железобетонные монолитные. + Наружные стены - поризованный керамический кирпич, с дополнительным утеплением каменной ватой и облицовкой из кирпича ручной формовки снаружи. + Внутренние перегородки кирпичные. + Крыша - керамическая черепица. + Выполненено полное благоустройство участка, уложена клинкерная тротуарная плитка и рулонный газон. СОЧЕТАНИЕ КОМФОРТА И ТЕХНОЛОГИЧНОСТИ: Дом построен по индивидуальному архитектурному проекту. При строительстве применялись материалы исключительно премиальных мировых брендов: + облицовочный кирпич ручной формовки MUHR Nr53 Preston; + кровельное покрытие - керамическая черепица LOGICA PLANA; + алюминиевые окна АЛЮТЕХ и пр. В доме предусмотрены: + большая гостиная со вторым светом; + кухня с выходом в крытую зону барбекю (террасу); + отдельный рабочий кабинет; + спортивный зал; + зона СПА с сауной и хамамом, а также с выходом к крытой купели; + техническое помещение с постирочной; + 3 просторные спальни с отдельными гардеробными зонами и индивидуальными санузлами; + просторный гараж на 2 автомобиля; + помещение котельной. Также разработан индивидуальный дизайн проект дома, который будет передан будущему собственнику в подарок. Коммуникации центральные: + Газ магистральный + Водопровод центральный + Электричество 15 кВт Канализация - локальное очистное сооружение. БЕЗОПАСНОТЬ: Коттеджный поселок бизнес-класса Охтинский парк - один из самых престижных во Всеволожском районе Ленинградской области. Территория огорожена по всему периметру и находится под круглосуточной охраной, видеонаблюдением и в управлении профессиональной управляющей компании. МЕСТОПОЛОЖЕНИЕ: В пешей доступности располагаются курорт Охта-парк, Северный склон, озеро Хепоярви, церковь Архангела Михаила, Токсовские озера, Большой Кузьмоловский карьер, множество ресторанов и магазинов! На территории поселка находятся детские игровые площадки, частный английский детский сад, спортивные поля. Ждем новых счастливых владельцев этого замечательного дома!

























































































