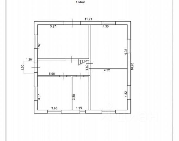
Продаётся загородный дом от застройщика в живописном поселке: комфорт и природа рядом! О поселке: Коттеджный посёлок с огороженной территорией и охраной, расположен на лесной поляне, который огибает река. На въезде автоматические ворота. Детская и спортивная площадка. Вдоль реки прогулочная зона с беседками, пляжем и зоной барбекю. Дренаж по всему периметру поселка. Широкие внутриквартальные проезды выложены асфальтовой крошкой. Выход в сосновый лес, где вы сможете собирать грибы и ягоды. О Преимущества покупки: • Прямая продажа от застройщика (без комиссий). • Аккредитованный застройщик -доступна семейная, сельская и IT ипотека. • Юридическое сопровождение сделки. • Возможность покупки дистанционно • Фотоотчёты всех этапов строительства. основные характеристики: • Площадь дома: 100 м2. • Участок: 6 соток в собственности. • Материал стен: керамический блок (отличная тепло- и шумоизоляция). • Отделка: серый ключ (предчистовая) или под ключ (на выбор). • Этажность: 1 полноценный этаж без скосов. • Планировка: 3 спальни, просторная кухня гостиная, 1 санузел • Участок правильной формы, сухой, выровнен песком и плодородной землей под газон. • Коммуникации: • Электричество: 15 кВт, разведено по дому. • Водоснабжение: скважина • Канализация: автономная биостанция ЛОС, устанавливается под ваш запрос • Отопление: тёплые полы по всему 1 этажу • Газ: поселок включен в программу догазификации • Инфраструктура: • Удобное транспортное сообщение в 4 км от посёлка находится ж/д станция Саблино, до Московского вокзала 30 мин. на электричке. До г. Колпино 20 мин. До автобусной остановки 5 минут пешком. Автобус идет до вокзала 10 мин., курсирует ежедневно. Яндекс такси. До районного г. Тосно 15 км., где есть школы, дет. сады, бассейн Лазурный, фитнес-центры, торговые центры, салоны красоты, бизнес-центры, нотариусы, поликлиника, роддом, банки, рынок со свежими и натуральными овощами, фруктами и прочим продовольствием. -Недалеко от посёлка расположены Соляные пещеры, Саблинские водопады и конный клуб. ЗВОНИТЕ, записывайтесь на просмотр










































































