


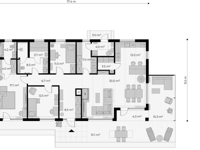
Арт. 134313915 Камерный коттеджный посёлок в 10 км от ЗСД — формат загородной жизни, в котором сохраняется связь с городом. Дорога до центра занимает около 35 минут, при этом само пространство выстроено вокруг природной панорамы участка, возможность переключаться между делами и отдыхом без лишних перемещений. Закрытая охраняемая территория формирует ощущение устойчивости и внутреннего спокойствия. Дом площадью 130,2 м² расположен на участке 16 соток. Архитектура выдержана в современном лаконичном стиле: чистые линии, крупные остеклённые плоскости, работа с объёмом и светом. Пространство участка остаётся открытым для интерпретации — сохранён природный ландшафт, который можно либо оставить в его естественном состоянии, либо дополнить благоустройством под свой ритм жизни. Интерьер собран в спокойной, нейтральной гамме с акцентом на натуральные материалы и тактильные поверхности. Здесь нет избыточных декоративных решений — внимание сосредоточено на качестве фактур, свете и пропорциях. Использованы современные технологические решения и бытовая техника, которые интегрированы в пространство и не перетягивают на себя внимание. Планировка выстроена вокруг центральной общественной зоны. Кухня-гостиная с панорамными окнами и высотой потолка до 5 метров формирует основной объём дома — пространство, наполненное светом в течение всего дня. Здесь естественно складываются сценарии: утро с видом на участок, вечер у камина, встречи с близкими за обеденным столом. Приватный блок отделён от общей зоны. Спальни решены сдержанно, без визуального шума — пространства, в которых легко восстановиться. Дополнительно предусмотрены зоны хранения и хозяйственные помещения, встроенные в общую логику дома. Отдельное внимание уделено SPA-зоне — она выполнена с использованием натуральных материалов, прекрасная возможность восстановления внутри собственного дома, без необходимости выезда и лишней динамики. Инженерные решения ориентированы на круглогодичное проживание: стабильные коммуникации, продуманная система хранения, современное оборудование. Дом не требует доработок — все базовые задачи решены на этапе реализации. Терраса становится продолжением внутреннего пространства — местом для отдыха, наблюдения за сменой сезонов и созерцания на открытом воздухе. Участок залит светом, с возможностью расширения до 41 сотки, что открывает дополнительные возможности и идеи использования территории. В непосредственной близости — ресторан, магазин, озеро с природным ландшафтом. Компактный современный дом, приватный участок с потенциалом роста и близость к городу — решение для тех, кто ищет баланс между концентрацией, восстановлением и возможностью оставаться в ритме города.
















































































