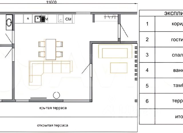
Мы подходим под ведущие Ипотечные программы: • Для IT специалистов • Семейная + Рассрочка Продаётся дом с шикарным видом на сосновый лес в Коттеджном Посёлке комфорт-класса Среда обитания. Сам поселок находится в окружении красивейшего леса. В шаговой доступности озера. Поселок огорожен по периметру, установлен шлагбаум и видео-наблюдение. Видовой участок. Все панорамные окна и терраса обращены к лесу. Все дома построены в едином архитектурном стиле. В указанную стоимость входит: • Участок • Дом с террасой общей площадью 120 м2. • Коммуникации заведенные в дом.(вода, электричество 15кВт, локальный септик) • Забор по всему периметру • Дренаж, утеплённая отмостка, парковка на два машиноместа КОТТЕДЖ: • Фундамент - утепленная шведская плита (УШП). • Стены деревянный каркас • Фасад - комбинированный штукатурка / планкен. • Теплые полы по всему дому (трубы водяного теплого пола в стяжке). • Панорамное остекление высотой 2,4 метра (двухкамерные энергосберегающие стеклопакеты). • Высота потолков 3 метра. Отделка: White box Дорога: • Широкополосная трасса Скандинавия (пробок не бывает) • 15 минут до Рощино • 30 минут до С-Петербурга ЗСД - КАД Записывайтесь на экскурсию















































































