В доме две квартиры,
отдельные входы.
Кратко:
Дом: Кирпич, брус. Статус Жилой. ИЖС. Прописка. Центральные коммуникации (газ, электричество 15 кВт, водоснабжение, канализация). Отопление газовый котёл.
Дом (дуплекс) для круглогодичного проживания для большой семьи на 2 входа общей площадью 299 кв.м. на участке 10 соток с возможностью ведения фермерского хозяйства.
Прямая продажа. 1 взрослый собственник. Полная стоимость в договоре. Подходит под ипотеку, субсидию, мат. капитал. Документы готовы к продаже.
1. О доме:
Фундамент ленточный, 1 этаж построен из кирпича, 2 и 3 этажи брус. Фасад дома отделан сайдингом.
1.1. Центральный газ.
1.2. Центральный водопровод.
1.3. Локальная канализация.
1.4. Электричество 15 квт по деревенским тарифам.
1.5. Отопление автономное.
1.6. Первая половина дома с отдельным входом:
1 этаж: терраса-крыльцо, холл-прихожая, котельная (котёл для всех видов топлива), кухня-гостинная, мини-кухня, спальня, туалет, большой оборудованный погреб.
2 этаж: 2 комнаты, санузел с ванной, коридор с большим шкафом-купе.
3 этаж: большой холл, 2 летние комнаты, бойлерная, хоз. помещения.
1.7. Вторая половина дома с отдельным входом:
1 этаж: веранда-холл, кладовые.
2 этаж: веранда, коридор, кухня-гостинная, спальня, совмещённый санузел.
2. Об участке:
Участок 10 соток ЛПХ, ровный, сухой, ухоженный, правильной формы, распланирован. Забор по периметру.
2.1. На участке: кирпичный гараж 100 кв.м, отапливаемый(теплый пол), кирпичная баня с комнатой отдыха, большой хоздвор для ведения фермерского хозяйства с местом для содержания МРС и КРС, навес, загон для выгула.
2.2. Плодовые деревья и кустарники (малина, слива, яблони).
2.3. Выделенная зона под огород: грядки, теплица.
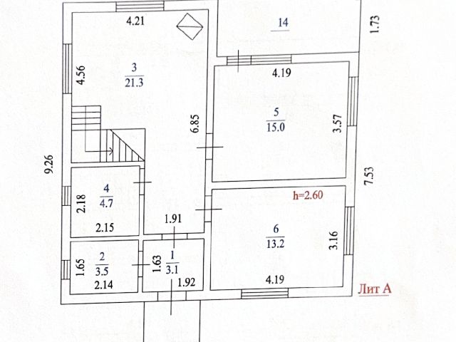
Кадастровые номера, план дома и дополнительные фото по запросу.
3. О посёлке:
Общеобразовательная школа, дом детского творчества, детский сад, поликлиника, аптека, почта, ветеринарная клиника, сетевые магазины (Магнит, Пятёрочка, Стройудача и многое другое).
Много мест для активного и семейного отдыха: парк, озера, конный клуб, ипподром, рыбоводническая ферма, Ропшинские пруды, церковь, кафе, ресторан. Гольф клуб. Фонтаны Петергофа в 20 минутах езды на машине.
4. Транспортная доступность:
На машине 10 минут до КАДа, 30 минут до метро Ветеранов, 40 минут до аэропорта.
Автобус 486 и 650 до метро Пр.Ветеранов, 639 до метро Ленинский проспект, 481 до метро Кировский завод, 454 и 443 до Красного Села. Остановка общественного транспорта в 3 минутах пешком.
Ленинградская область, Ломоносовский район, Ропшинские сельское поселение, Ропша, улица генерала Федюнинского.