ПРОДАЕТСЯ НОВЫЙ 2-Х ЭТАЖНЫЙ ТЕПЛЫЙ ДОМ ДЛЯ КРУГЛОГОДИЧНОГО ПРОЖИВАНИЯ, В ЛОМОНОСОВСКОМ РАЙОНЕ, С. РУССКО-ВЫСОЦКОЕ!
С полной отделкой и подключенными коммуникациями!
ПРЕИМУЩЕСТВА
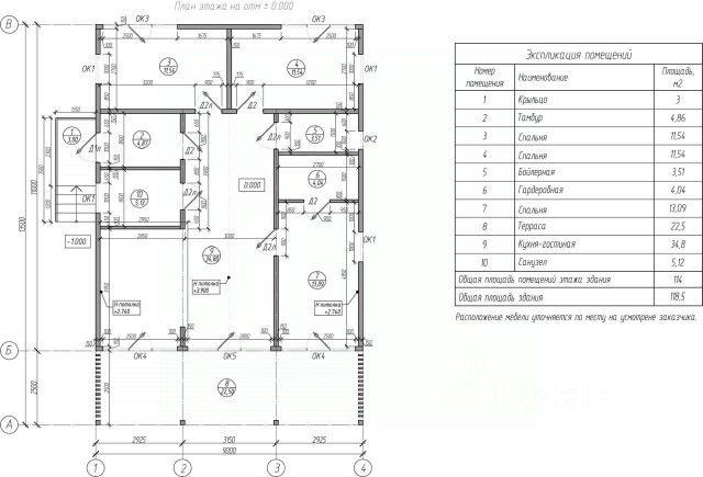
1. Надежный долговечный дом 108,8кв.м.
- ФУНДАМЕНТ МОНОЛИТНАЯ ПЛИТА 8*8 предотвращает деформацию дома.
- СТЕНЫ - блоки из ячеистого бетона (газосиликатные блоки), с утеплением из плит пенополистирольных теплоизоляционных, имеют хорошую звукоизоляцию, экологичны, не боятся вредителей и не гниют.
- Внутри отделан имитацией бруса из хвойных пород, что создает уютную атмосферу и приятный запах нового деревянного дома.
- Крыша крыта ондулином: бесшумна, не нагревается на солнце летом, сохраняет тепло внутри зимой.
2. Удобная планировка:
- Много комнат - гарантия комфорта для всех членов семьи;
- Минимум проходных метров;
- Хотите изменить планировку? Легко! Например, добавьте спальню на 1 этаже и санузел на втором.
3. Подключены коммуникации:
- ВОДА от скважины заведена в дом, сантехника установлена;
- Магистральный ГАЗ, электричество, выполнена разводка, розетки, светильники;
- Локальная канализация.
4. Транспортная доступность:
- на машине до КАД 22км.
- в 400м от дома остановка Русско-Высоцкое - Больница. Автобусы 481, 484 курсируют через Красное Село до Санкт-Петербурга, ст.м. Автово. Автобус 632 курсирует через Красное Село до Санкт-Петербурга, ст.м. Проспект Ветеранов. Автобус 632 ходит до Красного Села. Автобус 653 едет до Петергофа, ж/д станция Старый Петергоф, Ломоносов, ж/д станция Ориенбаум-1.
5. Инфраструктура:
- Вся необходимая инфраструктура в 5-10 минутах ходьбы от дома! В с.Русско-Высоцкое есть детский сад (200м. от дома) и школа (800м. от дома). Русско-Высоцкая больница в 500м. Так же есть продуктовые магазины Семишагов, Пятерочка, Магнит, кафе, рестораны.
Участок 5,82 соток, огорожен забором с калиткой и воротами для авто.
Купить новый, загородный дом для круглогодичного проживания с пропиской можно в ипотеку, сельскую ипотеку, с использованием материнского капитала, сертификата, рассрочку, аренду с правом выкупа и т.п.
АРЕНДА С ВЫКУПОМ! Срок от года до 30 лет! Под 14% годовых! Не нужны справки, поручители, залог имущества и первый взнос! При любой кредитной истории!
Полное сопровождение от выбора дома до сделки.
Мы - НЕ агентство, мы Отдел продаж застройщика-собственника!
Звоните и я расскажу о доме и вариантах его приобретения. Убедитесь, что переехать в свой дом это легко! Дом в селе Русско-Высоцкое Ломоносовского района.