


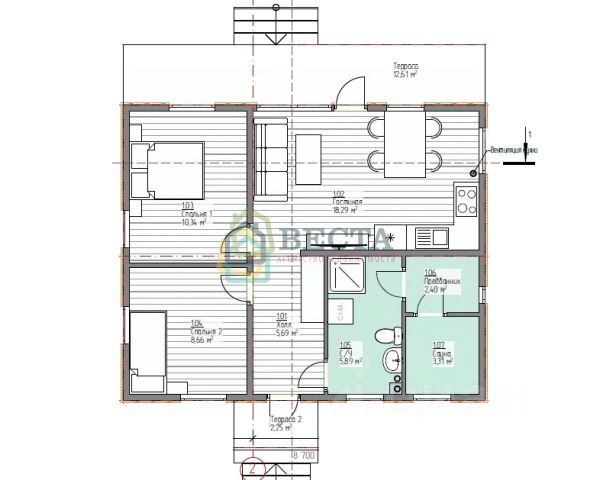
Одноэтажный дом из клеёного бруса (200*140(h))мм на участке 118 в КП Сосновские горки в готовности "под чистовую отделку". Установлен на железобетонной плите толщиной 200 мм с ростверком и утеплителем под плитой (шведский фундамент). В плите проложены трубки для утепления пола. Тёплый пол, который может обогреваться от электрического котла и от газового котла. Мощность на участок 15 кВт. В посёлок заведён газ среднего давления. По программе догазификации газопровод до участка может быть подведён бесплатно. В доме проведены электрические сети, установлены розетки, выключатели. Остаётся только повесить люстры. Сделана выравнивающая стяжка. Остаётся только уложить плитку или паркет, или ламинат. Проведены трубы ГВС и ХВС, проведены канализационные трубы. Установлен электрический котёл на 12 кВт. Установлены локальные очистные сооружения активного типа компании Аэробокс. Введена в дом вода. Водоснабжение от центрального водопровода из лицензированной скважины с питьевой водой. Кровля - металло черепица. Трасса выполнена из импрегнированной террасной доски. К участку подведён оптоволоконный интернет. В 100 метрах от участка парковая зона лесного массива с лесным ручьём и двумя прудами, прогулочной дорожкой, беседками. Это зона рекреации посёлка Сосновские горки для тихой и размеренной жизни и отдыха. В 2021 году на конкурсе КАИССА от ассоциации риэлтеров Санкт-Петербурга и Ленинградской области посёлок стал победителем в номинации "Лучший девелоперовский проект на рынке загородной недвижимости". В шаговой доступности находятся сосново-еловый лес, всесезонный курорт Игора, гоночная трасса Игора-драйв, магазин Пятёрочка, АЗС Лукойл, ресторан "Золотая форель", строительная база. До ж/д станции Сосново 20 минут пешком. Посёлок находится в границах населённого пункта Сосново. Где есть вся городская инфраструктура: школа, детский сад, магазины, кафе, рестораны, спортивные секции, клубы, рынок, церковь, стадион и мн. др. До Раздольнинского озера 10 мин на машине. Адрес: ЛО, Приозерский район, п. Сосново, КП Сосновские горки, участок 118 Площадь дома 120 м2 (включая террасу) Площадь участка: 7 соток Цена: 13 900 000 рублей Кадастровый номер участка: 47:03:1209002:791 Продажа домом с газом в поселке Сосново Приозерского района.
















































































