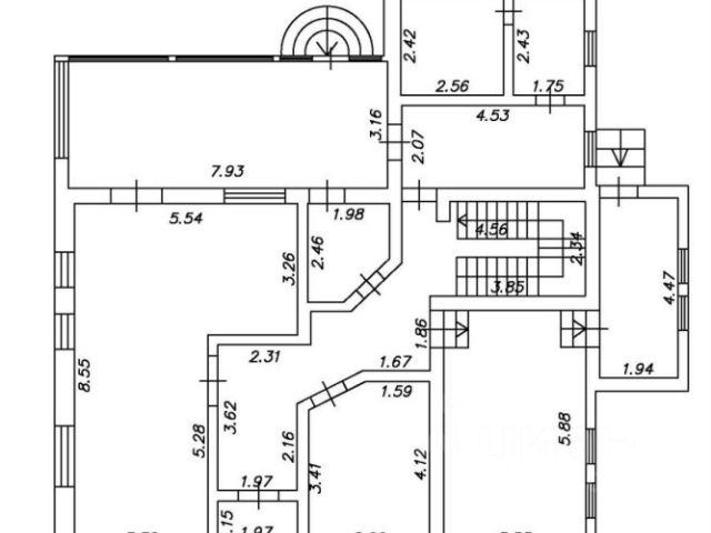
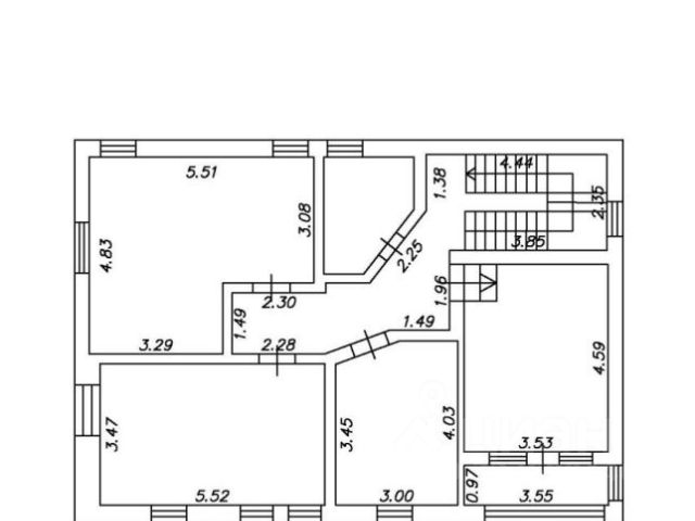
Продаются два зимних дома на сухом, ровном, прямоугольном участке ИЖС площадью 8,38 сотки в центре Рощино! Номер объекта: 100_233 Дом 120 кв.м, двухэтажный. На первом этаже располагаются просторная гостиная с камином 21 кв.м, кухня 8 кв.м, санузел 9 кв.м с сауной 5 кв.м, холл и крытая терраса 9 кв.м. Второй этаж включает в себя холл-гостиную 21 кв.м и 2 спальни по 14 кв.м. Фундамент дома - железобетонная плита 350 мм. Материал стен - газобетонные блоки 375 мм, снаружи стены утеплены и отделаны сайдингом. Крыша - металлочерепица, утепление минеральная вата, 275 мм. На первом этаже дома электрические тёплые полы. Установлены электрические бойлеры. Год постройки 2010. Второй дом площадью 53 кв.м Планировка дома включает в себя гостиную 19,1 кв.м, спальню 10 кв.м.и кухню 8,4 кв.м. и коридор и санузел с душевой кабиной. Стены деревянные, отделаны сайдингом. Крыша - металлочерепица. Отопление печное. Год постройки 1977. Коммуникации: -Газ - магистральный, на границе участка. Можно сделать заявку и подключиться; -Водоснабжение - центральное; -Электричество 15 кВт; -Канализация - септик. Участок ровный, сухой, огорожен забором. На участке расположен хозяйственный блок, растут плодовые деревья и кустарники. Организовано парковочное место на 4 автомобиля, установлены распашные ворота. Заезд на участок с асфальтовой муниципальной дороги. В Рощино находится вся необходимая для комфортной постоянной жизни инфраструктура: магазины, рынок, школа, детский сад, медицинские учреждения, спортивные комплексы, банки. Доступны любые виды загородного отдыха: пляжи, рыбалка, лыжи, охота. Отличная транспортная доступность. От центра Санкт-Петербурга можно доехать всего за 1 час (от ЗСД 40 км), или электричкой от Финляндского вокзала до ж/д станции Рощино. Звоните! Будем рады ответить на все вопросы и запланировать показ в удобное для Вас время! Купить дом на улице Полевая в поселке городского типа Рощино.




































































